374 High Street, Smethwick, West Midlands, B66 3PJ

  • Unconditional Online Sale
  • Offers in Excess of : £450,000
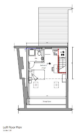
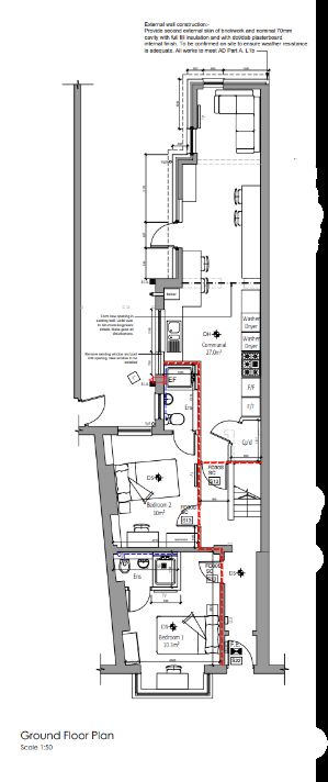
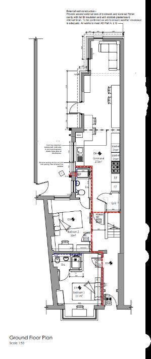
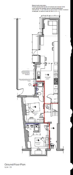
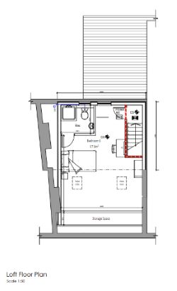
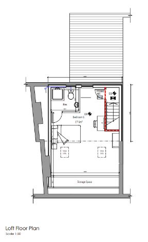
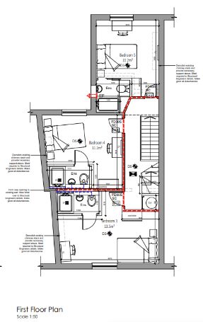
  • Bedrooms: 6
  • Bathrooms: 6
  • Reception Rooms: 1

Fully Licensed 6-Bed All-Ensuite HMO | £49,776 Annual Income | 11.06% Gross Yield | Prime West Midlands Location | Near Major Employers & Amenities | Professional Tenants | Excellent Road & Rail Links | Regeneration Area | Turnkey Investment

Description

This modern, fully compliant 6-bedroom, all-ensuite HMO offers a compelling income-generating investment in a well-located West Midlands setting. Tenanted by working professionals, the property generates £49,776 in annual rental income, delivering a strong gross yield of 11.06% with stable occupancy and reliable returns. Designed to meet modern tenant expectations, the all-ensuite layout enhances rental appeal and minimises void risk. Ideally positioned close to major employers and local amenities, and benefiting from excellent transport connectivity via the M5 and M6 motorways and strong regional rail routes, the property enjoys consistent demand. Supported by ongoing city centre regeneration, housing growth, and infrastructure investment, this asset represents a resilient, high-performing opportunity in one of the Midlands’ most dependable rental markets.

Income Breakdown (Monthly)

Room 1: £675.00
Room 2: £699.00
Room 3: £725.00
Room 4: £725.00
Room 5: £649.00
Room 6: £675.00
Total Monthly Income: £4,148.00
Total Annual Income: £49,776.00

Expenditure Breakdown (Monthly):

Gas and Electric: £276.67
Water: £49.08
Council Tax: £119.00
TV License: £14.95
Broadband: £36.00
Cleaner: £111.60
Management: £300.00
Total Monthly Expenditure: £907.30
Total Annual Expenditure: £10,887.60

Investment Performance:

Net Annual Income: £38,888.40
Gross Yield: 11.06%
Net Yield: 8.64%

Committed Sale Process

This property is offered for sale via the HMO X Committed Sale process. Buyers are advised to review the full Terms & Conditions of sale and all documentation contained within the legal pack before making an offer.

If your offer is accepted, a £3,500 reservation deposit will be required to secure the property and remove it from the market. The deposit is not a buyer’s fee and will be credited toward the purchase price on exchange.

Full details of the Committed Sale process are available within the legal pack or from the HMO X team.

Loading the bidding panel...

Financing

Looking to purchase at auction but need the right finance in place?
We’ve partnered with VIBE Finance to help our buyers secure fast and flexible funding solutions tailored for HMOs.

Get in touch with VIBE Finance today to explore the best financing options for your next HMO purchase

HMO X - VIBE Finance

Agreement Documents

Legal Documents

Log in to view legal documents

Related Documents

Make an Enquiry

Submit an enquiry and someone will be in contact shortly.

 
*  
*  
*
*
*

Share