208 Chichester Road, Portsmouth, Hampshire, PO2 0AX

  • Unconditional Online Sale
  • Offers in Excess of : £630,000
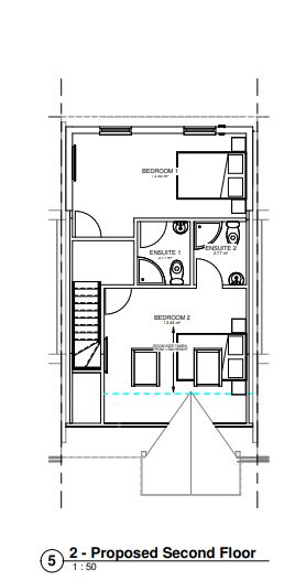
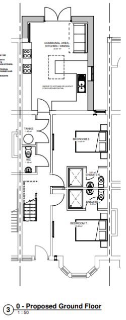
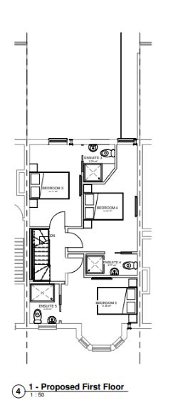
  • Bedrooms: 7
  • Bathrooms: 7
  • Reception Rooms: 1

Fully Licensed 7-Bed All-Ensuite HMO | £63,900 Annual Income | 10.14% Gross Yield | Prime Portsmouth Location | Near University, Naval Base & Employers | Professional Tenants | Excellent Transport Links | Regeneration Area | Turnkey Investment

Description

This high-quality 7-bedroom, all-ensuite HMO offers a compelling investment opportunity in a prime Portsmouth location. Fully let to working professionals, the property generates a strong annual rental income of £63,900 delivering a gross yield of 10.14% with stable occupancy and dependable returns. Designed with modern ensuite rooms, a shared kitchen, living area, WC, and garden, it provides the quality accommodation today’s tenants demand. Ideally situated near the University of Portsmouth, the naval base, shops, and major employers, it benefits from consistent rental demand, while excellent rail connections to London and Southampton, easy M27/A3 access, and ferry links enhance its commuter appeal. With large-scale regeneration across the city centre, waterfront, and Tipner West driving long-term growth and capital appreciation, this fully tenanted asset represents a secure, income-generating opportunity in one of the South Coast’s most resilient rental markets.

Income Breakdown (Monthly)

Room 1: £750.00
Room 2: £750.00
Room 3: £750.00
Room 4: £750.00
Room 5: £775.00
Room 6: £775.00
Room 7: £775.00
Total Monthly Income: £5,325.00
Total Annual Income: £63,900.00

Expenditure Breakdown (Monthly):

Gas: £127.00
Electric: £128.00
Water: £99.00
Council Tax: £153.74
TV License: £14.54
Broadband: £35.00
Cleaner: £60.00
Management: £511.20.
Total Monthly Expenditure: £1,128.48
Total Annual Expenditure: £13,541.76

Investment Performance:

Net Annual Income: £50,358.24
Gross Yield: 10.14%
Net Yield: 7.99%

Committed Sale Process

This property is offered for sale via the HMO X Committed Sale process. Buyers are advised to review the full Terms & Conditions of sale and all documentation contained within the legal pack before making an offer.

If your offer is accepted, a £3,500 reservation deposit will be required to secure the property and remove it from the market. The deposit is not a buyer’s fee and will be credited toward the purchase price on exchange.

Full details of the Committed Sale process are available within the legal pack or from the HMO X team.

Loading the bidding panel...

Financing

Looking to purchase at auction but need the right finance in place?
We’ve partnered with VIBE Finance to help our buyers secure fast and flexible funding solutions tailored for HMOs.

Get in touch with VIBE Finance today to explore the best financing options for your next HMO purchase

HMO X - VIBE Finance

Agreement Documents

Legal Documents

Log in to view legal documents

Related Documents

Make an Enquiry

Submit an enquiry and someone will be in contact shortly.

 
*  
*  
*
*
*

Share