37-38 Borough Road, Burton-on-Trent, Staffordshire, DE14 2DA

  • Unconditional Online Sale
  • Offers in Excess of : £1,250,000
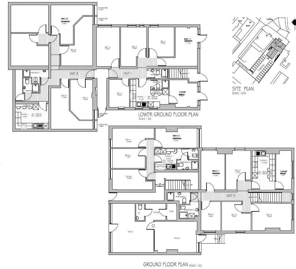
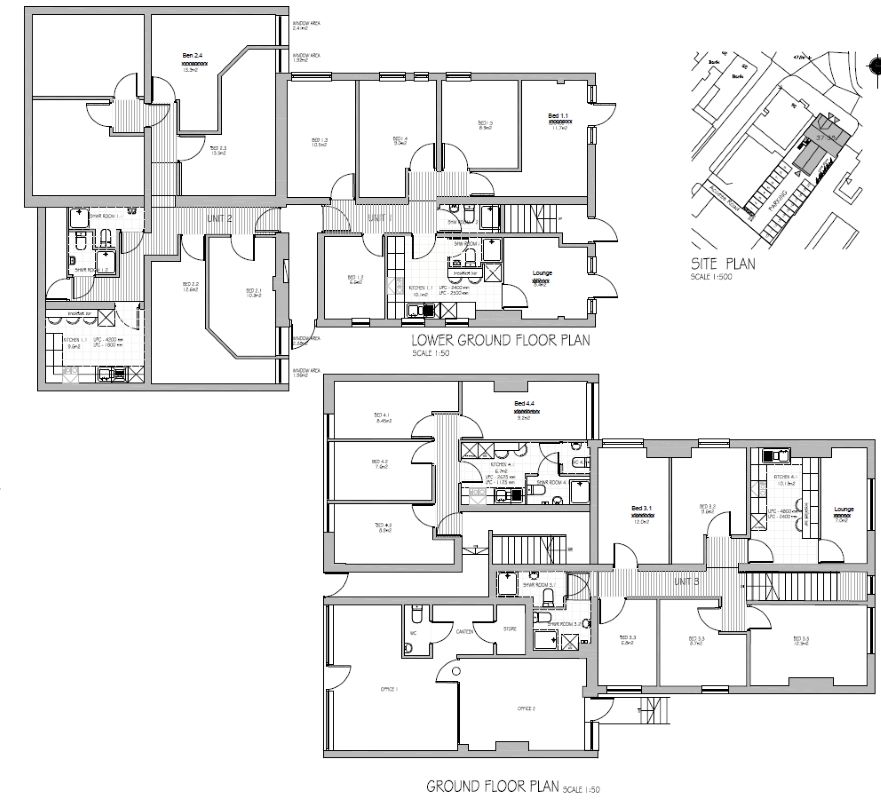
  • Bedrooms: 29
  • Bathrooms: 12
  • Reception Rooms: 2

Fully Licensed 29-Bed 12-Bath HMO | £171,252 Annual Income | 13.70% Gross Yield | Prime Burton-on-Trent Location | Near Town Centre, Employers & Amenities | Professional Tenants | Excellent Transport Links | Regeneration Area | Turnkey Investment

Description

This expansive, fully compliant 29-bedroom, 12-bathroom HMO offers an exceptional high-income investment opportunity in a prime Burton-on-Trent location. Fully let to working professionals, the property generates an impressive annual rental income of £171,252, delivering a strong gross yield of 13.70% with consistent occupancy and reliable returns. Well-maintained and spacious throughout, it provides quality accommodation that appeals to a wide tenant base seeking proximity to the town centre, key employers, and local amenities. Excellent transport connectivity via rail links to Derby and Birmingham, alongside easy access to the A38 and A50 motorways, enhances its long-term rental appeal. With ongoing town centre regeneration and significant regional investment driving tenant demand and capital growth, this property represents a secure, large-scale, income-generating asset in one of the Midlands’ most resilient and high-performing rental markets.

Income Breakdown (Monthly)

Flat 1 (5 Bedrooms): £2,368.33
Flat 2 (4 Bedrooms): £2,106.66
Flat 3 (5 Bedrooms): £2,301.66
Flat 4 (4 Bedrooms): £1,611.00
Flat 5 (5 Bedrooms): £2,518.32
Flat 6 (6 Bedrooms): £2,489.99
Office: £875.00
Total Monthly Income: £14,270.96
Total Annual Income: £171,251.52

Expenditure Breakdown (Monthly):

Gas: £439.00
Electric: £647.00
Water: £94.66
Council Tax: £708.75
Broadband: £305.58
Cleaner: £210.83
Management: £1,541.00 (10.8% inc VAT)
Total Monthly Expenditure: £3,946.82
Total Annual Expenditure: £47,361.84

Investment Performance:

Net Annual Income: £123,889.68
Gross Yield: 13.70%
Net Yield: 9.91%

Committed Sale Process

This property is offered for sale via the HMO X Committed Sale process. Buyers are advised to review the full Terms & Conditions of sale and all documentation contained within the legal pack before making an offer.

If your offer is accepted, a £3,500 reservation deposit will be required to secure the property and remove it from the market. The deposit is not a buyer’s fee and will be credited toward the purchase price on exchange.

Full details of the Committed Sale process are available within the legal pack or from the HMO X team.

Loading the bidding panel...

Financing

Looking to purchase at auction but need the right finance in place?
We’ve partnered with VIBE Finance to help our buyers secure fast and flexible funding solutions tailored for HMOs.

Get in touch with VIBE Finance today to explore the best financing options for your next HMO purchase

HMO X - VIBE Finance

Agreement Documents

Legal Documents

Log in to view legal documents

Related Documents

Make an Enquiry

Submit an enquiry and someone will be in contact shortly.

 
*  
*  
*
*
*

Share