11 Navigators Road, Birmingham, West Midlands, B27 6SX

  • Unconditional Online Sale
  • Offers in Excess of : £400,000
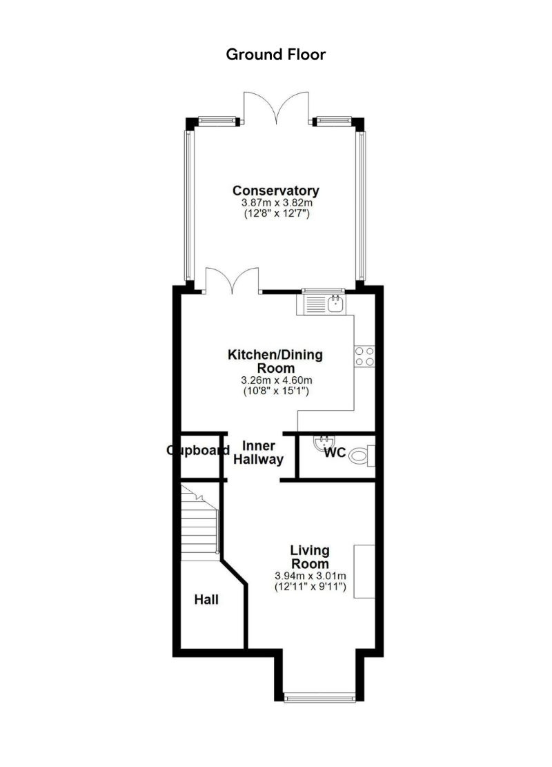
  • Bedrooms: 6
  • Bathrooms: 3
  • Reception Rooms: 1

Fully Licensed 6-Bed 3-Bath HMO (1 Ensuite) | £46,800 Annual Income | 11.70% Gross Yield | Prime Birmingham Location | Near Universities, Employers & City Amenities | Professional Tenants | Excellent Transport Links | Regeneration Area | Turnkey Investment

Description

This modern, fully licensed 6-bedroom, 3-bathroom HMO—featuring one ensuite—offers a strong, income-generating opportunity in a prime Birmingham location. Tenanted by working professionals, the property produces £46,800 in annual rental income, delivering a solid gross yield of 11.70% with steady, reliable occupancy and dependable returns. Spacious and well-presented throughout, it appeals to a wide tenant base and benefits from exceptional proximity to major employers, universities, and key city amenities. Outstanding transport connectivity—via rail, tram, and bus links, along with easy access to the M42, M6, A45, and A38—further strengthens its long-term rental appeal. Supported by the transformational Big City Plan, HS2-linked growth, and ongoing city centre regeneration, this property represents a secure, high-performing investment in one of the Midlands’ most dynamic and future-focused rental markets.

Income Breakdown (Monthly)

Room 1: £600.00
Room 2: £660.00
Room 3: £630.00
Room 4: £535.00
Room 5: £770.00
Room 6: £705.00
Total Monthly Income: £3,900.00
Total Annual Income: £46,800.00

Expenditure Breakdown (Monthly):

Gas & Electricity: £196.69
Water: £79.00
Council Tax: £228.00
TV License: £14.50
Broadband: £22.93
Cleaner: £120.00
Management: Self-managed
Total Monthly Expenditure: £661.12
Total Annual Expenditure: £7,933.44

Investment Performance:

Net Annual Income: £38,866.56
Gross Yield: 11.70%
Net Yield: 9.72%

Committed Sale Process

This property is offered for sale via the HMO X Committed Sale process. Buyers are advised to review the full Terms & Conditions of sale and all documentation contained within the legal pack before making an offer.

If your offer is accepted, a £3,500 reservation deposit will be required to secure the property and remove it from the market. The deposit is not a buyer’s fee and will be credited toward the purchase price on exchange.

Full details of the Committed Sale process are available within the legal pack or from the HMO X team.

Loading the bidding panel...

Financing

Looking to purchase at auction but need the right finance in place?
We’ve partnered with VIBE Finance to help our buyers secure fast and flexible funding solutions tailored for HMOs.

Get in touch with VIBE Finance today to explore the best financing options for your next HMO purchase

HMO X - VIBE Finance

Agreement Documents

Legal Documents

Log in to view legal documents

Related Documents

Virtual Tour

11 Navigators Road Video Tour

Make an Enquiry

Submit an enquiry and someone will be in contact shortly.

 
*  
*  
*
*
*

Share