69 Horbury Drive, Bury, Lancashire, BL8 2PS

  • Unconditional Online Sale
  • Offers in Excess of : £285,000
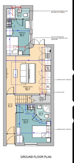
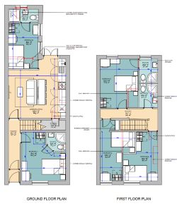
  • Bedrooms: 5
  • Bathrooms: 4
  • Reception Rooms: 1

Fully Licensed 5-Bed 4-Bath HMO (3 Ensuites) | £33,360 Annual Income | 11.71% Gross Yield | Prime Bury Location | Near Town Centre, Retail & Employers | Professional Tenants | Metrolink & Motorway Links | Regeneration Area | Turnkey Investment

Description

This modern, fully licensed 5-bedroom, 4-bathroom HMO—featuring three ensuite rooms—offers a strong, income-generating investment in a prime Bury location. Fully tenanted by working professionals, the property generates £33,360 in annual rental income, delivering an attractive gross yield of 11.71% with stable occupancy and reliable returns. Ideally positioned close to Bury town centre, retail amenities, and major employers, it benefits from consistent tenant demand, while excellent transport connectivity via Metrolink services to Manchester and easy access to the M60 and M66 enhances commuter appeal. Supported by ongoing town centre redevelopment and wider Greater Manchester investment, this property represents a secure, high-performing opportunity in one of the North West’s most resilient and well-connected rental markets.

Lease Start Date

24/12/1906

Lease Duration

999 years (880 years unexpired)

Income Breakdown (Monthly)

Room 1: £600.00
Room 2: £595.00
Room 3: £495.00
Room 4: £495.00
Room 5: £595.00
Total Monthly Income: £2,780.00
Total Annual Income: £33,360.00

Expenditure Breakdown (Monthly):

Gas: £100.00
Electric: £163.00
Water: £39.50
Council Tax: £156.40
TV License: £14.54
Broadband: £35.00
Cleaner: £80.00
Total Monthly Expenditure: £588.44
Total Annual Expenditure: £7,061.28

Investment Performance:

Net Annual Income: £26,298.72
Gross Yield: 11.71%
Net Yield: 9.23%

Committed Sale Process

This property is offered for sale via the HMO X Committed Sale process. Buyers are advised to review the full Terms & Conditions of sale and all documentation contained within the legal pack before making an offer.

If your offer is accepted, a £3,500 reservation deposit will be required to secure the property and remove it from the market. The deposit is not a buyer’s fee and will be credited toward the purchase price on exchange.

Full details of the Committed Sale process are available within the legal pack or from the HMO X team.

Loading the bidding panel...

Financing

Looking to purchase at auction but need the right finance in place?
We’ve partnered with VIBE Finance to help our buyers secure fast and flexible funding solutions tailored for HMOs.

Get in touch with VIBE Finance today to explore the best financing options for your next HMO purchase

HMO X - VIBE Finance

Agreement Documents

Legal Documents

Log in to view legal documents

Related Documents

Make an Enquiry

Submit an enquiry and someone will be in contact shortly.

 
*  
*  
*
*
*

Share