59 Pittneys, Peterborough, Cambridgeshire, PE4 7BB

  • Unconditional Online Sale
  • Offers in Excess of : £425,000
  • Bedrooms: 6
  • Bathrooms: 6

Fully Licensed 6-Bed All-Ensuite HMO (Incl. 3 Studios) | £45,312 Annual Income | 10.66% Gross Yield | Prime Peterborough Location | Near City Centre, University & Employers | Professional Tenants | Fast London Rail Links | Regeneration Area | Turnkey Investment

Description

This well-presented 6-bedroom, all-ensuite HMO—featuring three spacious studio rooms—offers a compelling turnkey investment in a prime Peterborough location. Fully let to working professionals, the property generates £45,312 in annual rental income, delivering a strong gross yield of 10.66% with consistent occupancy and dependable cash flow. Situated close to the city centre, university campus, and major employers, it benefits from robust tenant demand, while excellent connectivity via fast rail links to London in under 50 minutes and easy access to the A1(M) and A47 further enhances its appeal. With significant regeneration projects across the city centre and continued housing growth driving long-term capital appreciation, this property represents a secure, high-yielding investment opportunity in one of the East of England’s most dynamic rental markets.

Income Breakdown (Monthly)

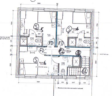
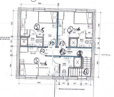
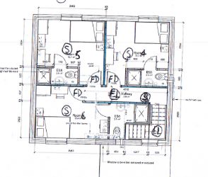
Room 1: £575.00
Room 2: £575.00
Room 3: £595.00
Room 4: £641.00
Room 5: £695.00
Room 6: £695.00
Total Monthly Income: £3,776.00
Total Annual Income: £45,312.00

Expenditure Breakdown (Monthly):

Gas: £104.22
Electric: £104.22
Water: £48.06
Council Tax: £169.00
TV License / Broadband: £0.00 (Tenant Responsibility)
Management: £266.00
Total Monthly Expenditure: £691.50
Total Annual Expenditure: £8,298.00

Investment Performance:

Net Annual Income: £37,014.00
Gross Yield: 10.66%
Net Yield: 8.71%

Committed Sale Process

This property is offered for sale via the HMO X Committed Sale process. Buyers are advised to review the full Terms & Conditions of sale and all documentation contained within the legal pack before making an offer.

If your offer is accepted, a £3,500 reservation deposit will be required to secure the property and remove it from the market. The deposit is not a buyer’s fee and will be credited toward the purchase price on exchange.

Full details of the Committed Sale process are available within the legal pack or from the HMO X team.

Loading the bidding panel...

Financing

Looking to purchase at auction but need the right finance in place?
We’ve partnered with VIBE Finance to help our buyers secure fast and flexible funding solutions tailored for HMOs.

Get in touch with VIBE Finance today to explore the best financing options for your next HMO purchase

HMO X - VIBE Finance

Agreement Documents

Legal Documents

Log in to view legal documents

Related Documents

Make an Enquiry

Submit an enquiry and someone will be in contact shortly.

 
*  
*  
*
*
*

Share