2 Raymond Crescent, Guildford, Surrey, GU2 7SX

  • Unconditional Online Sale
  • Offers in Excess of : £600,000
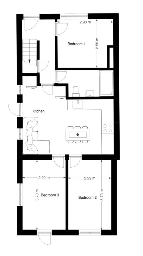
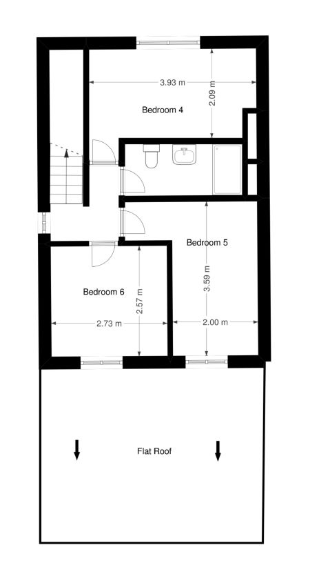
  • Bedrooms: 6
  • Bathrooms: 2
  • Reception Rooms: 1

Fully Licensed 6-Bed HMO | £46,800 Annual Income | 7.80% Gross Yield | Prime Guildford Location | Near University of Surrey & Town Centre | Student Tenants | Fast London Rail Links | Regeneration Area | Turnkey Investment

Description

This well-presented, fully licensed 6-bedroom, 2-bathroom HMO offers a secure, student-focused investment in a prime Guildford location. Fully let to students, the property generates £46,800 in annual rental income, delivering a solid gross yield of 7.80% with reliable academic-year demand. Ideally situated close to the University of Surrey, Guildford town centre, and a wide range of amenities, it benefits from consistently strong student demand. Excellent transport connectivity via fast rail links to London Waterloo, alongside easy access to the A3 and M25, further enhances its appeal. Supported by ongoing town centre regeneration, transport upgrades, and university-led investment, this property represents a stable, low-void investment opportunity in one of the South East’s most resilient and sought-after student rental markets.

Income Breakdown (Monthly)

Room 1: £650.00
Room 2: £650.00
Room 3: £650.00
Room 4: £650.00
Room 5: £650.00
Room 6: £650.00
Total Monthly Income: £3,900.00
Total Annual Income: £46,800.00
*Already let for 26/27 at £666.67 per person, per month*

Expenditure Breakdown (Monthly):

Tenants cover all utility bills
Management (7% + VAT): £327.60
Total Monthly Expenditure: £327.60

Investment Performance:

Net Annual Income: £42,868.80
Gross Yield: 7.80%
Net Yield: 7.14%

Committed Sale Process

This property is offered for sale via the HMO X Committed Sale process. Buyers are advised to review the full Terms & Conditions of sale and all documentation contained within the legal pack before making an offer.

If your offer is accepted, a £3,500 reservation deposit will be required to secure the property and remove it from the market. The deposit is not a buyer’s fee and will be credited toward the purchase price on exchange.

Full details of the Committed Sale process are available within the legal pack or from the HMO X team.

Loading the bidding panel...

Financing

Looking to purchase at auction but need the right finance in place?
We’ve partnered with VIBE Finance to help our buyers secure fast and flexible funding solutions tailored for HMOs.

Get in touch with VIBE Finance today to explore the best financing options for your next HMO purchase

HMO X - VIBE Finance

Agreement Documents

Legal Documents

Log in to view legal documents

Related Documents

Make an Enquiry

Submit an enquiry and someone will be in contact shortly.

 
*  
*  
*
*
*

Share